Te koop herenhuis van 156 m² in Athene in aanbouw. Het herenhuis is verdeeld over 2 verdieping. De Begane grond bestaat uit woonkamer met keuken, een badkamer. De 1e verdieping bestaat uit 3 slaapkamers, 2 doucheruimtes. Het object biedt een mooi uitzicht op zee. Onroerend goed heeft airconditioner, verwarming. Er is een lift in het gebouw aanwezig. Er is een alarmsysteem aanwezig in het pand. Onroerend goed omvat tuin, garage. Er is een privézwembad aanwezig.
----------------------------------------------------------------------------------
Luxury Maisonette with Private Garden & Pool – 156 sq.m. | Alimos
Located in the prestigious coastal area of Alimos, just 130 meters from the sea, this impressive newly built 156 sq.m. luxury maisonette extends over two levels and is set on a 367 sq.m. plot.
The residence is part of the modern Alimos Riviera Garden Residence and combines contemporary architectural design with premium construction materials and advanced energy-efficient technologies.
It is ideally situated close to public transport, schools, parks, and the local market, while being approximately 16 km from Athens city center and 33 km from Athens International Airport.
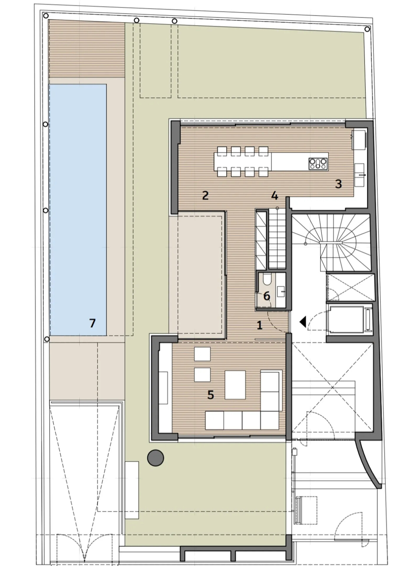
The ground floor hosts the main living areas designed for comfort and functionality.
It features:
Large glass openings allow abundant natural light and create a seamless connection with the outdoor area and the private swimming pool.
The first floor serves as the private sleeping area and includes:
The interiors feature minimal aesthetics and premium materials, offering an elegant and tranquil living environment.
The property holds Energy Class A+, ensuring excellent energy efficiency and low operating costs.
Features include:
An outstanding property ideal both for luxury living and high-value investment in the rapidly developing Athenian Riviera.





























